後期高齢者79才、AIが私にくれた新しい希望の日々!

心筋梗塞から43年、AIが私にくれた新しい希望を見つけ挑戦している日々を綴ります。

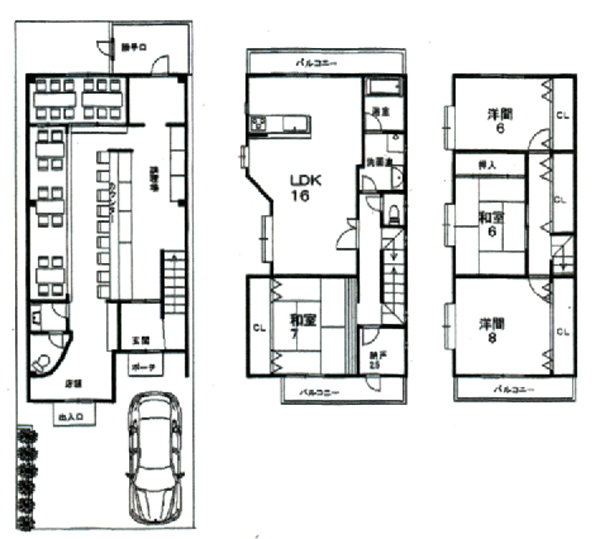
京都下京区 JR西大路駅周辺 店舗付住宅売り情報


周辺の写真です。

京都市下京区梅小路西中町72

JR東海道本線『西大路駅』徒歩8分

御前通に面しています。


価格:5,350万円

土地:公簿・117.98平方メートル 約35.68坪
建物:鉄骨・木造スレート葺3階建

築年月:平成10年8月

準工業地域:60/200% 

接道状況:東側11メートルに間口5.9メートル接面


グーグル位置図



京都不動産情報  

担当:モリタ迄お問い合わせ下さい。

I.C倶楽部 不動産情報問い合わせフォーム


I.C倶楽部事務局 
電話:075-583-3337 FAX:050-3488-2205

コメント

コメントを書く